ВЕЛИЧЕСТВЕННАЯ 7-КОМНАТНАЯ КВАРТИРА С БАССЕЙНОМ И ВИДОМ НА МОРЕ

70 000 €

Расположенная в престижном районе Монако Фонвьей, эта великолепная недвижимость в аренду имеет захватывающий вид на море, порт и Кап-д'Ай. Недвижимость имеет жилую площадь 366 м², с пятью большими спальнями... Он имеет просторные террасы и лоджии общей площадью 210 м², общей площадью 702 м². Этот редкий отель сочетает в себе элегантность, комфорт и исключительные виды в самом востребованном месте.

Подробнее

Коммунальные услуги
9 200 €
Тип операции
Аренда
Тип объекта
Квартира
Кол-во комнат
больше 5 комнат
Здание
Memmo Center
Район
Fontvieille
Общая площадь
702 м²
Жилая площадь
366 м²
Площадь террасы
336 м²
Возможно использование как жилой или коммерческой недвижимости
Да
Ванные комнаты
5
Парковочные места
4
Подвалы
1

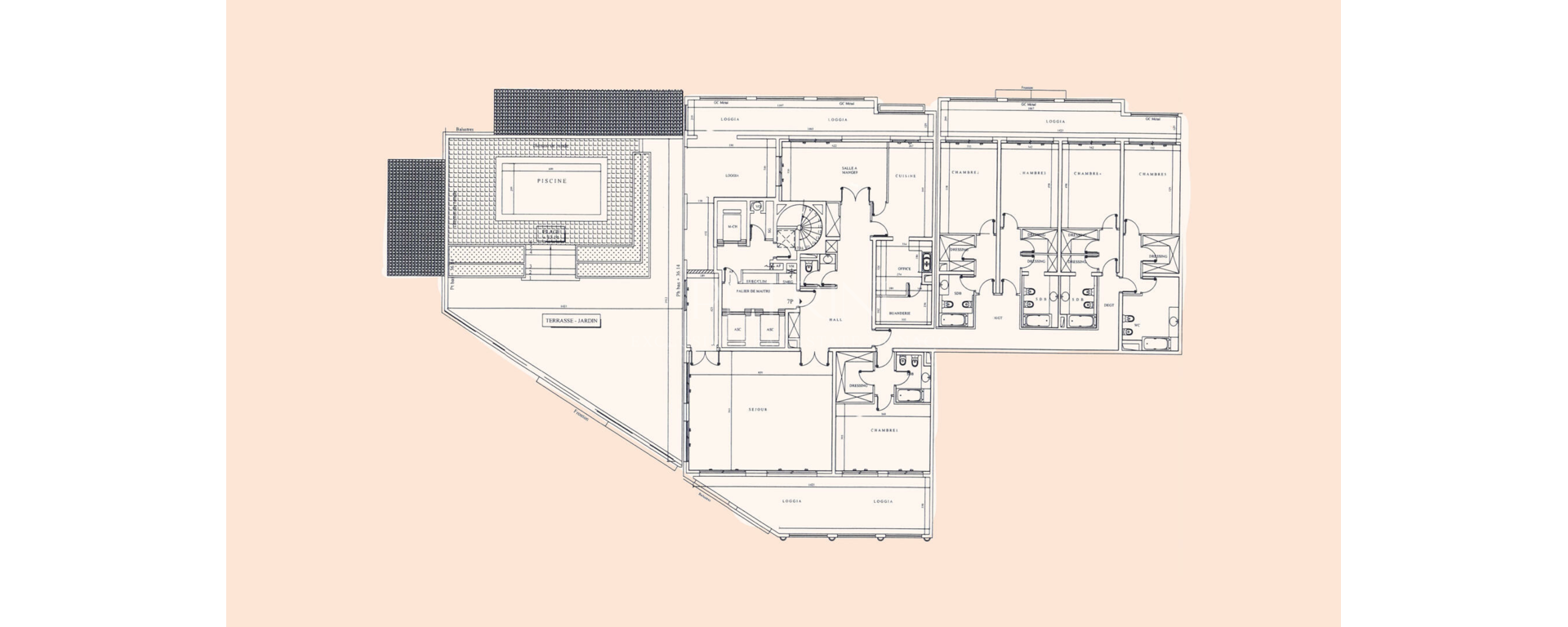
Этот редкий отель состоит из 7 комнат , тщательно обустроенных, чтобы максимизировать пространство и свет. Просторная и гостеприимная гостиная выходит на южную сторону, гарантируя оптимальное освещение и великолепный вид на побережье. Соседняя столовая предлагает идеальное место для элегантных ужинов.

Пять спален предлагают комфорт и уединение, с ванными комнатами и душевыми комнатами, а также гардеробными/гардеробными для оптимального хранения. Центральным элементом, несомненно, является терраса с частным бассейном, настоящая гавань спокойствия, где вы можете расслабиться и насладиться захватывающими дух видами.

Дополнительные возможности:

  • Террасы/лоджии: Большая терраса с частным бассейном приглашает вас в эксклюзивные моменты отдыха.
  • Стоянка: Два парковочных места двойной длины включены в стоимость, что обеспечивает удобство и безопасность. т.е. 4 автостоянки
  • Погреб: Доступно дополнительное решение для хранения.

Преимущества квартала:

Фонвьей известен своей спокойной атмосферой и легким доступом к роскошным магазинам, изысканным ресторанам и зеленым насаждениям, предлагая исключительное качество жизни.

Эта недвижимость представляет собой уникальную возможность проживать в одном из самых эксклюзивных районов Монако, сочетающем в себе роскошь, спокойствие и захватывающие дух виды. Идеальное место для тех, кто хочет поселиться в исключительной обстановке.

Download the brochure
Floorplan of the property
Memmo Center
Eugenia Petrini

Eugenia Petrini
Directrice

+377 92 00 16 00 +377 92 00 16 00
contact@petrini.mc

ВЕЛИЧЕСТВЕННАЯ 7-КОМНАТНАЯ КВАРТИРА С БАССЕЙНОМ И ВИДОМ НА МОРЕ

For more information on this property you can directly contact the real estate agent in charge of it.

Contact us on WhatsApp
Related properties

Subscribe to our newsletter and discover our
exclusive Off Market properties.

Язык :
Interested in :
(* : Обязательное поле)